Modernes Einfamilienhaus mit viel Platz für die Familie – Reutlingendorf

89611 Obermarchtal / Reutlingendorf
Objekt-ID: 41021
530.000 €Kaufpreis

Einfamilienhaus zum Kauf

Zum Kauf
ca. 147 m²Wohnfläche
7Zimmer
ca. 922 m²Grundstück
2006Baujahr
3Anzahl Schlafzimmer
1Anzahl Badezimmer
2Anzahl Stellplätze

Preise

Kaufpreis530.000 €

Käuferprovision: 3,57 % inkl. MwSt.

Flächen

Wohnflächeca. 147 m²
Zimmer7
Grundstücksflächeca. 922 m²

Zusätzliche Angaben

verfügbar abKurzfristig

Zustand und Bauart

Baujahr2006
Zustandgepflegt
Unterkellert

Räume, Flure und Etagen

Schlafzimmer3
Badezimmer1
Separate WCs1
Balkone1

Stellplätze

Garage2

Beschreibung

In ruhiger und naturnaher Lage von Obermarchtal / Reutlingendorf präsentiert sich dieses gepflegte Einfamilienhaus aus dem Baujahr 2005 als ideales Zuhause für Familien oder Paare mit Platzbedarf. Auf einem großzügigen Grundstück von ca. 922 m² bietet die Immobilie viel Raum für Erholung, Gartenfreude und ein angenehmes Wohnumfeld.

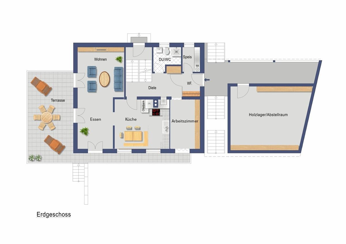
Im Erdgeschoss befinden sich der große und offen gestaltete Wohn-/Essbereich mit Kachelofen und Zugang in den Garten. Hier gliedern sich die Küche mit Einbauküche und weiteren Essbereich an. An den Flur ordnen sich weiter ein Arbeitszimmer, Gäste-WC mit Dusche, sowie eine Speis an. Im Dachgeschoss sind Elternschlafzimmer, zwei Kinderzimmer und das geräumige Bad untergebracht. Im Untergeschoss befinden sich Hobbyraum, Gästezimmer, Technikraum und ein Abstellraum.

Das Haus verfügt über zusätzliche Nutz- und Abstellflächen, die den Wohnkomfort im Alltag deutlich erhöhen. Der gepflegte Gesamtzustand unterstreicht den wertigen Eindruck der Immobilie und ermöglicht in der Regel einen unkomplizierten Einzug. Ledigilich die Außenanlage muss noch fertiggestellt werden. Eine große Doppelgarage mit weiterer Bühne als Lagerfläche, rundet das Platzangebot ab.

Die Immobilie ist kurzfristig verfügbar und eignet sich hervorragend für Interessenten, die zeitnah den Schritt ins Eigenheim realisieren möchten.

Lage

Das charmante Einfamilienhaus befindet sich in der idyllischen Gemeinde Obermarchtal, im Teilort Reutlingendorf. Diese Lage bietet eine malerische Landschaft und eine ruhige, familienfreundliche Umgebung, ideal für Naturliebhaber und all jene, die dem Großstadtrubel entfliehen möchten. Obermarchtal liegt im Herzen der Region Oberschwaben in Deutschland und ist bekannt für seine idyllische Natur und die reiche Kulturgeschichte.

In unmittelbarer Nähe befinden sich zahlreiche Wander- und Radwege, die zu Erkundungstouren in die herrliche Umgebung einladen. Trotz der ruhigen Lage ist die Anbindung an umliegende Städte gewährleistet, wodurch sowohl die Nahversorgung als auch Bildungseinrichtungen gut erreichbar sind. Der nächste größere Ort bietet vielfältige Einkaufsmöglichkeiten, Restaurants und weitere Annehmlichkeiten für den täglichen Bedarf. Hier vereinen sich naturnahes Wohnen und eine gute Infrastruktur auf ideale Weise.

Energieausweis

EnergieausweistypBedarf
Energieausweis gültig bis05.02.2036
Endenergiebedarf137,6 kWh/(m²*a)
EnergieeffizienzklasseE
Energieausweis Baujahr2006
Wesentlicher EnergieträgerHolz
BefeuerungsartPellet
HeizungsartZentralheizung
  • A+
  • A
  • B
  • C
  • D
  • E
  • F
  • G
  • H
  • 0
  • 25
  • 50
  • 75
  • 100
  • 125
  • 150
  • 175
  • 200
  • 225
  • >250
Endenergiebedarf: 137,6 kWh/(m²*a)

Objektanfrage

Patrick Rothenbacher

0049739153712Objektanfrage